Продажба: 70 кв.м.Двустаен апартамент

ID 165830
€216 969

(€3099,56/кв.м.)

гр.Варна / Св.Св. Константин и Елена

Купи за 1617 лв/месец
14.01.2026 г.
188

Двустаен източен апартамент

Описание на имота

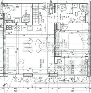
Явлена Ви предлага за продажба двустаен апартамент разположен на първи етаж в новострояща се шестетажна жилищна сграда. Апартаментът е със следното разпределение: Входно антре, дневен тракт с открита кухня, спалня, тераса с достъп от двете стаи, баня с тоалетна Възможност за закупуване на подземно или открито паркомясто, включително за хора с увреждания, предвидени са и места за велосипеди. Изложение: запад/изток/юг. Имотът се предлага по БДС стандарт, готов за полагане на подови настилки ...


Спецификации на имота
тухла
баня
спалня

Двустаен апартамент
Изложение: Югозапад
Асансьор: Да

Строителство
Тухла

Цена
Цена на кв.м: €3099,56

Етикети
Ваканционен имот на море
Ново строителство
За инвестиция
затворен комплекс

Допълнителна информация
Брой тераси: 1
Хидро/шумо/топло - изолация
Централен водопровод
Централна канализация
Достъп по Асфалтов път
Към Проект: Да

Локация на имота
property location photo

Забележка: Не можем да покажем точната локация на имота от съображения за сигурност/конфиденциалност.

Свържи се с брокер

broker photo
Диана Дафинова

Варна / Варна пл. "Славейков"

86 имота

Остават: 874/1000
Изпращайки това съобщение, се съгласявате с Условията за ползване
Имоти в същата сграда
property image
€225 215
Двустаен апартамент73 кв.м.
Варна, Св.Св. Константин и Елена
ID 165881
property image
€438 247
Тристаен апартамент141 кв.м.
Варна, Св.Св. Константин и Елена
ID 165867
property image
€199 020
Двустаен апартамент64 кв.м.
Варна, Св.Св. Константин и Елена
ID 165871
Подобни имоти
property image
€165 000
Двустаен апартамент70 кв.м.
Варна, м-т Траката (Средна)
ID 149628
property image
€170 514
Двустаен апартамент59 кв.м.
Варна, Св.Св. Константин и Елена
ID 160235
property image
Нов€190 000
Двустаен апартамент60 кв.м.
Варна, м-т Траката (Горна)
ID 168098
property image
Нов€195 000
Двустаен апартамент60 кв.м.
Варна, м-т Траката (Горна)
ID 168099
property image
€197 012
Двустаен апартамент73 кв.м.
Варна, Св.Св. Константин и Елена
ID 160285
property image
€199 020
Двустаен апартамент64 кв.м.
Варна, Св.Св. Константин и Елена
ID 165871
property image
€204 000
Двустаен апартамент65 кв.м.
Варна, Св.Св. Константин и Елена
ID 162951
property image
€205 000
Двустаен апартамент68 кв.м.
Варна, Св.Св. Константин и Елена
ID 151829
property image
Нов€219 000
Двустаен апартамент91 кв.м.
Варна, Св.Св. Константин и Елена
ID 168263
property image
€225 215
Двустаен апартамент73 кв.м.
Варна, Св.Св. Константин и Елена
ID 165881
property image
€230 000
Двустаен апартамент87 кв.м.
Варна, Св.Св. Константин и Елена
ID 167785
property image
Нов€248 000
Двустаен апартамент68 кв.м.
Варна, Св.Св. Константин и Елена
ID 168095
property image
Изпратете запитване за цена
Двустаен апартамент85 кв.м.
Варна, Св.Св. Константин и Елена
ID 150567
property image
€260 000
Двустаен апартамент58 кв.м.
Варна, Св.Св. Константин и Елена
ID 165657

Кредитен Калкулатор на

Бисквитки на интернет сайта http://www.yavlena.com/

Ние използваме бисквитки (cookies/beacons), за да ви гарантираме най-добра функционалност и подходящо съдържание на нашия сайт. Ако продължите да браузвате сайта http://www.yavlena.com/, без да промените настройките си за бисквитки, ще приемем, че сте съгласни да получавате всички бисквитки от сайта http://www.yavlena.com/. Можете да промените настройките си за бисквитки по всяко време. Повече информация можете да намерите в нашата Политика за използване на „Бисквитки“ на интернет сайта http://www.yavlena.com/.

Нашите Условия за ползване.