Продажба: 135 кв.м.Тристаен апартамент

ID 168660
€337 600

(€2500,74/кв.м.)

гр.Варна / м-т Св. Никола

Купи за 2516 лв/месец
10.04.2026 г.
132

Слънчев и просторен тристаен апартамент в нова жилищна сграда

Описание на имота

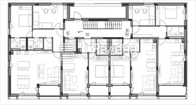
ID 168660 Описание: Явлена продава слънчев и просторен тристаен апартамент състоящ се от просторен дневен тракт с площ 43,50 кв.м, две големи спални, три санитарни помещения, коридор и прекрасна панорамна гледка , находящ се в новострояща се бутикова жилищна сграда в начален етап на строителство. Апартамента се намира на втори етаж от 4 етажа, изцяло покрит , находящ се в сграда с асансьор и прилежащо избено помещение. Сградата ще бъде изградена с високо качество на строителството от доказана ...


Спецификации на имота
гараж
тухла
необзаведен
3 бани
2 спални

Тристаен апартамент
Етаж: 2
Изложение: Югоизток, Северозапад
Отопление: Индивидуално
Степен на завършеност: на шпакловка и замазка
Паркомясто: Да
Асансьор: Да

Строителство
Тухла
Год. на построяване: 2026
Обзавеждане: Необзаведен

Цена
Цена на кв.м: €2500,74

Етикети
Ваканционен имот на море
Ново строителство
За инвестиция
Луксозен имот
Гледка към море
Морска панорама

Допълнителна информация
Брой тераси: 1
Складово помещение
Площ складово помещение: 2 кв.м.
Площ на мазе/таван: 6 кв.м.
Площ на гараж/паркомясто: 20 кв.м.
Хидро/шумо/топло - изолация
Централен водопровод
Централна канализация
Достъп по Асфалтов път

Локация на имота
property location photo

Забележка: Не можем да покажем точната локация на имота от съображения за сигурност/конфиденциалност.

Свържи се с брокер

broker photo
Ангелина Спасова

Варна / Варна "Братя Миладинови"

58 имота

Остават: 874/1000
Изпращайки това съобщение, се съгласявате с Условията за ползване
Подобни имоти
property image
€278 000
Тристаен апартамент113 кв.м.
Варна, м-т Евксиноград
ID 152976
property image
€285 000
Тристаен апартамент95 кв.м.
Варна, Бриз
ID 130802
property image
€290 000
Тристаен апартамент104 кв.м.
Варна, м-т Траката (Долна)
ID 168055
property image
€327 500
Тристаен апартамент115 кв.м.
Варна, Бриз
ID 150064
property image
€331 000
Тристаен апартамент165 кв.м.
Варна, Бриз
ID 166620
property image
Нов€350 000
Тристаен апартамент195 кв.м.
Варна, м-т Траката (Долна)
ID 169489
property image
€380 000
Тристаен апартамент177 кв.м.
Варна, Бриз
ID 165381
property image
€380 000
Тристаен апартамент177 кв.м.
Варна, м-т Св. Никола
ID 165961
property image
€385 000
Тристаен апартамент107 кв.м.
Варна, м-т Евксиноград
ID 162221
property image
€395 000
Тристаен апартамент250 кв.м.
Варна, м-т Св. Никола
ID 165964
property image
€395 000
Тристаен апартамент250 кв.м.
Варна, Бриз
ID 165377
property image
€395 000
Тристаен апартамент122 кв.м.
Варна, м-т Евксиноград
ID 162231

Кредитен Калкулатор на

Бисквитки на интернет сайта http://www.yavlena.com/

Ние използваме бисквитки (cookies/beacons), за да ви гарантираме най-добра функционалност и подходящо съдържание на нашия сайт. Ако продължите да браузвате сайта http://www.yavlena.com/, без да промените настройките си за бисквитки, ще приемем, че сте съгласни да получавате всички бисквитки от сайта http://www.yavlena.com/. Можете да промените настройките си за бисквитки по всяко време. Повече информация можете да намерите в нашата Политика за използване на „Бисквитки“ на интернет сайта http://www.yavlena.com/.

Нашите Условия за ползване.